18, Boulevard de Kockelscheuer

L-1821 Luxembourg-Cloche d’Or

+352 285696-1

  • FR
  • EN
  • DE

4 - 4

0 - 0

0

154 - 154 m²

0 - 0 ar

Dillingen

Résidence à vendre

de 492 000 €
à 980 000 €

description du bien
Nous proposons à la vente un projet de maisons Jumelées situé à Dillingen.

Solution adapté Clé en Main ou Gros Oeuvre Fermé .

Votre projet de vie clé en main:
Cette maison d 'une surface de 154 m2 combine design épuré et aménagement fonctionnel réparti sur deux étage.

Baigné de lumière , le vaste séjour de 50m2 fusionne salon , salle à manger et cuisine en un espace chaleureux.
De larges baies vitrées offrent un accès direct à une terrasse de 17m2 prolongeant la séjours vers l'extérieur.

A l'étage découvrez deux belle chambres spacieuse de 20 m2 et 15m2 .
Ce niveau dispose également d'une salle d'eau ,de wc séparés et de rangements optimisés.

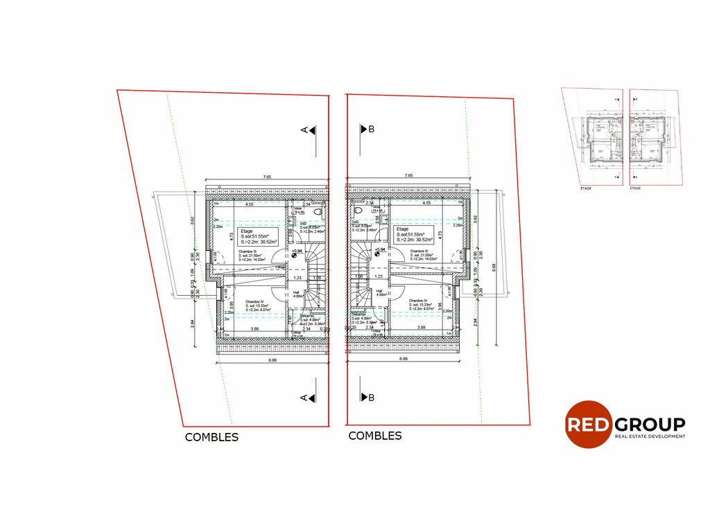
Le dernier étage sous combles accueille deux chambres supplémentaires de 21 m2 et 15 m2. Ce niveau dispose également d 'une salle d'eau, de wc indépendant et de rangements optimisés.

Les plans sont modifiable selon besoins et faisabilité technique.

Variante: Gros Oeuvre Fermé .
Une structure bâtie prête à être personnalisée

Outre la construction clé en main , nous proposons la variante gros oeuvre fermé .
Le gros oeuvre et la couverture de ces projets sont déjà réalisés. Pour cette variante seul la menuiserie extérieur reste a définir, vous offrant la liberté de planifier et d'exécuter vos travaux de second oeuvre à votre rythme, en priorisant vos choix et votre budget permettant d'étaler les travaux sur la durée.

Variante Gros Oeuvre Fermé: Prix Euros 492.000
Variante Clé en Main: Prix Euros 980.000

Nous restons à votre disposition pour de plus ample informations




détail de la vente

Honoraires à la charge

N.C

Montant honoraires

N.C

Charges mensuelles

N.C

TVA appliquée

N.C

Montant Commission

N.C

Frais de notaire

N.C

pass énergétique
Classe énergétique
A
Isolation thermique
caractéristiques
cuisine

cuisine équipée

carte
annonces similaires

Dillingen (lu)

Résidence à vendre

de 492 000 €
à 980 000 €